Ville-ès-Nonais
Ville-ès-NonaisBases
La description
-
La description:
Maison bretonne rénovée à la Ville-ès-Nonais
Leggett Immobilier International vous propose cette charmante maison bretonne de 108 m², entièrement rénovée, située au cœur de la Ville-ès-Nonais. Lumineuse et chaleureuse, elle offre un cadre de vie agréable et un confort optimal.
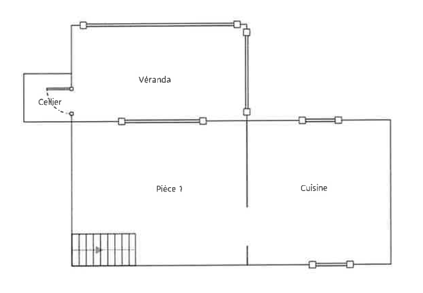
Rez-de-chaussée
Le rez-de-chaussée se compose d’une entrée desservant :
-
une cuisine,
-
une salle à manger,
-
un salon de 30 m² avec une magnifique cheminée d’origine.
Une véranda orientée plein sud prolonge le salon et ouvre sur le jardin, baigné de lumière.
Étage
À l’étage, vous trouverez :
-
deux chambres,
-
une salle de bains,
-
des WC séparés.
Studio indépendant
Un studio d’environ 24 m² complète la propriété. Il dispose d’une entrée séparée, d’une chambre, d’une kitchenette, d’une salle d’eau et de WC. Idéal pour de la location saisonnière ou pour accueillir des invités.
Extérieur
La maison bénéficie d’une cour à l’avant pouvant accueillir plusieurs véhicules et d’un jardin plein sud à l’arrière. Cet espace extérieur permet d’aménager une terrasse, un coin détente ou un potager. L’agencement assure une circulation fluide et préserve l’intimité.
Potentiel et rentabilité
Au-delà du confort immédiat, cette maison offre un véritable potentiel :
-
le studio indépendant peut générer une rentabilité saisonnière attractive,
-
le jardin permet des projets d’aménagement selon vos envies.
Environnement et cadre de vie
La Ville-ès-Nonais est un village chargé d’histoire, autrefois habité par les Terre-Neuvas, ces marins malouins partis pêcher la morue jusqu’à Terre-Neuve. Le village conserve son atmosphère maritime avec ses ruelles paisibles et ses maisons en pierre.
À quelques minutes, la Rance dévoile des paysages exceptionnels :
-
chemins de randonnée,
-
ports typiques,
-
points de vue sur l’estuaire,
-
activités nautiques pour les amateurs de nature.
Proximité de Saint-Malo
Saint-Malo est accessible en seulement 15 minutes. La cité corsaire offre patrimoine, plages et dynamisme économique, renforçant l’attrait de cette propriété pour y vivre à l’année ou investir.
Informations pratiques
-
Taxe foncière : 576 €
GÉNÉRAL
Afficher toute la descriptionRéférence A41515JFD35
Prix de vente 315 000 €
Honoraires charge vendeur
-
Négociateur immobilier – Agent commercial immatriculé au RSAC de Saint-Malo n° 951 459 213
Mandataire indépendant pour Leggett Immobilier International
➡️ Voir l’annonce officielle : Maison à vendre en Bretagne - Ille-et-Vilaine La Ville-ès-Nonais Villa-ès-Nonais | Très belle maison bretonne 108 m² avec studio aménagé | Jardin et véranda plein sud REF: A41515JFD35 | [15307] - Contact Direct : 06-45-51-29-19 jefferson.daniel@leggett.fr------Les informations sur les risques auxquels ce bien est exposé sont disponibles sur le site Géorisques : https://www.georisques.gouv.fr
-
Video
- Video :
